Farnese Masterwood

Masterwood Winner 1228KS

Masterwood Winner 1228KS

The WINNER 1228KS is a high-quality CNC machining centre with 3 controlled axes, equipped with a matrix table adapted to a variety of flexible working processes such as quick nesting, drilling, grooving, milling function.

Masterwood Winner 1228KS

Product Features

Carriage For Operating Units

Carriage For Operating Units

Lubrication

Lubrication

Motorizations

Motorizations

13 Kw Electrospindle Air Cooled

13 Kw Electrospindle Air Cooled

Fine (Radius) Trimming

Fine (Radius) Trimming

Gluing

Gluing

Corner Rounding Unit

Corner Rounding Unit

Honeywell Brand Safety Device

Honeywell Brand Safety Device

Design Features

With all Farnese machines, we pride ourselves on making features simple to use. Our commitment to intuitive design ensures ease of operation and minimal training requirements.

High performance machining centre incorporating italian technology.

Heavy duty machine frame with high accuracy ensures long lasting and stable running

Open software docking, and perfectly compatible with the diversified cv data format.

Easy to learn and operate with rapid routing, drilling, and grooving.

Masterwood Introduction Section
Farnese-Australia-25-Year-Anniversary

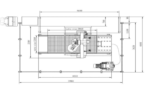
Technical Specifications

Masterwood Winner 1228
Table Size Number of Pumps
2800mm x 1200mm
Stand Alone
(Load/Unload Ready)
1
2800mm x 1200mm
Auto Load/Unload
1
2800mm x 1200mm
Auto Label Printing + Load/Unload
1
3600mm x 1800mm
Stand Alone
(Load/Unload Ready)
2
3600mm x 1800mm
Auto Load/Unload
2
3600mm x 1800mm
Auto Label Printing + Load/Unload
2